|
|
|
|
|
|
|
|
|
| Codice Riferimento: 1802 |
| Tipologia: |
Capannone industriale |
|
Tipo: |
VENDITA |
| Regione: |
EMILIA ROMAGNA |
|
Provincia: |
PARMA |
| Comune: |
PARMA |
|
Zona/Località: |
Parma Centro |
| Mq: |
3900 |
|
Prezzo: |
Euro: 2.100.000 |
| Num. Vani: |
0 |
|
Num. Camere: |
0 |
| Bagni: |
13 |
|
Cucina: |
Non definita |
| Piano: |
ND di 1 |
|
Soggiorno: |
|
| Condizioni: |
Non definite |
|
Riscaldamento: |
Autonomo |
| Classe Energetica: |
C (DL 192/2005) |
|
Prestazione Energetica: |
EPI: 16 kwh/m3 anno |
| Stato: |
Non definito |
|
Giardino: |
NO |
| Garage: |
SI |
|
Ascensore: |
NO |
| Arredato: |
NO |
|
Data |
19/12/2025 |
| Descrizione: |
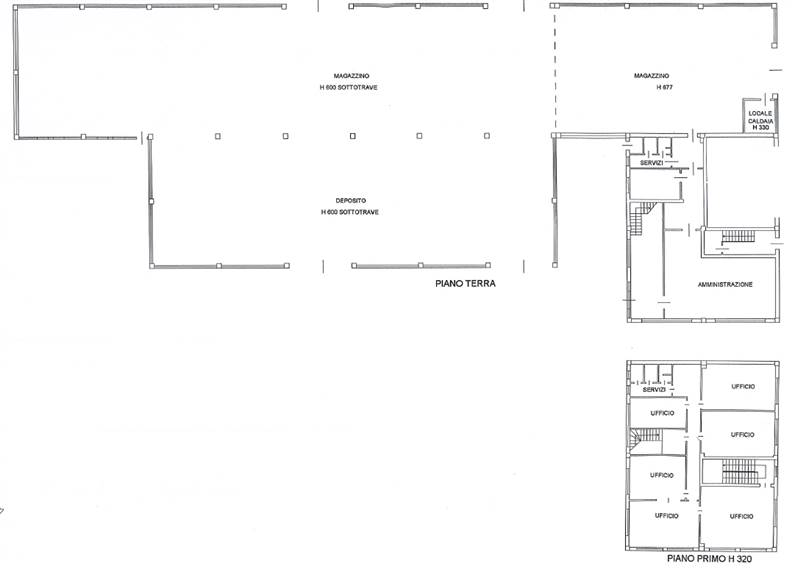
Complesso produttivo in zona sud
Il complesso è collocato su una direttrice primaria ed è composto da due capannoni di complessivi 3.900mq, con due accessi carrai.
Il lotto è di circa 12.700mq di cui edificati 3.100mq circa, la superficie scoperta risultante è di circa 9.600mq.
L’edificabilità residua, già disponibile, è di circa 700mq, per un possibile collegamento tra i due immobili.
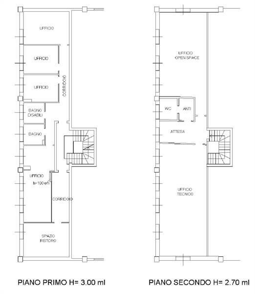
L'immobile più recente è di 1.975mq circa di cui: 1.475mq circa di capannone con servizi e spogliatoi e 500mq circa di uffici su tre piani.
Il capannone ha una unica campata di h 9.00m con solaio portante di copertura, dotato di carroponte con portata di 5t.
L'interno è molto luminoso con ampie finestrature e portoni carrabili.
Riscaldato il capannone, riscaldati e raffrescati gli uffici.
L'altro immobile è di 1.916mq circa di cui: 1.241mq circa di capannone; 397mq circa di uffici e servizi; 225mq circa di due alloggi e 53mq circa di due autorimesse.
Il capannone ha due campate con altezza sotto trave di h 6.00m, la campata più lunga è dotata di carroponte con portata di 2t. In copertura impianto fotovoltaico da 35kw.
L'interno è molto luminoso con ampie finestrature e portoni carrabili.
Riscaldato il capannone, riscaldati e raffrescati gli uffici.
Addossata al capannone la palazzina uffici/abitazioni su tre piani.
Rif. 1802
Per informazioni:
Immobili Parma Srls, Via Giovanni Giolitti 2/A, 43126 Parma, Tel. 05211962370, info@immobiliaziendali.eu
IMPORTANTE: l’effettivo stato dell’immobile potrebbe in alcuni casi discostarsi dalle caratteristiche tecniche, dalla disposizione interna e gli accessori indicati in annuncio. I portali possono pubblicare dati differenti pertanto la società Immobili Parma Srls declina ogni responsabilità per possibili incongruenze.
Precisiamo inoltre che l’indirizzo pubblicato è indicativo al fine di tutelare la privacy del venditore. L’indirizzo corretto verrà comunicato previo incontro presso la nostra sede.
... |
|
|
|
|
|
|
| Annuncio pubblicato dall'agenzia |
|
|
|
|
|
|
|
|
|
 | |  | |  |
| modello (18).png | | IMG_0043_1.jpg | | IMG_0056.jpg |
 | |  | |  |
| IMG_0058.jpg | | IMG_0046.jpg | | IMG_0064.jpg |
 | |  | |  |
| IMG_0062.jpg | | IMG_0069.jpg | | IMG_0071.jpg |
 | |  | |  |
| IMG_0075.jpg | | IMG_0044_1.jpg | | IMG_0040_1.jpg |
 | |  | |  |
| IMG_0041_1.jpg | | mapp 72.png | | mapp 104 terra.png |
 | | | | |
| mapp 104 uffici.png | | | | |
|
|
|
|
|
|
|
|
|
|
|
|
 |
|
|
|
AgestaNET è il nuovo gestionale immobiliare progettato da RisorseImmobiliari.it per la completa e rapida gestione di tutte le problematiche connesse all'attività immobiliare. Maggiori informazioni!
|
|
|
|
|
|
|
 |
|
|
|
|
| |
|
RisorseImmobiliari.it è il portale destinato a tutte le Agenzie Immobiliari, che intendono pubblicare in maniera semplice e autonoma i propri annunci immobiliari sul web. Maggiori informazioni!
|
|
|
|
|
|